[
Anmelden / Registrieren
]
Benutzer: Gast
Startseite
News & Artikel
Diskussionsforum
Wörterbuch
Wörterbuch-Index
Jobs & Praktika
Architekturbüros
Architekturführer
Berufswerkzeuge
Theorie, Ausbildung
Baurecht
Bauen
Energie
Sanieren
Immo Kaufen, Nutzen
Ausstatten, Design
Gegenwartskunst
Veranstaltungen
Suche:
Web-Mail
Termin-Koordination
Zur Zeit 418 Besucher
Wörterbuch (en)
: Tilt-wing window / Tilt-sash window
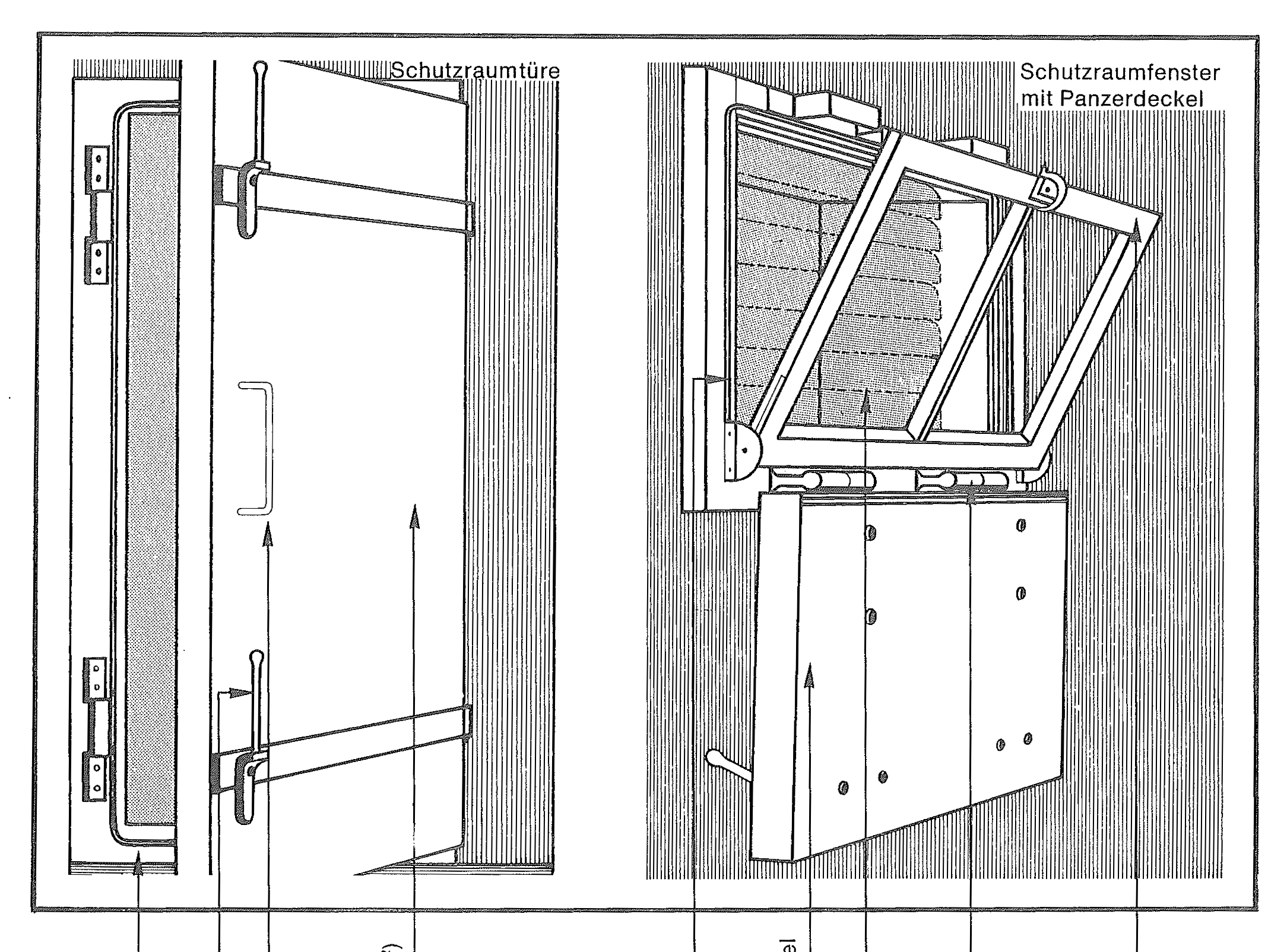
1
Tilt-wing window / Tilt-sash window
Crossbar / Crossbeam / Impost / Abutment
2
Lintel
3
Pivot windows
4
Hinged window / Hinged casement window / Casement window
5
6
Cover plate
7
1
Tilt-wing window / Tilt-sash window
Pivot windows
2
1
Tilt-wing window / Tilt-sash window
Seal
2
3
Air-raid door / Anti-air-raid door / Bunker door
4
5
6
hinge
7
1
Tilt-wing window / Tilt-sash window
Set timber / Dibble
2
Crossbar / Crossbeam / Impost / Abutment
3
Rung / Muntin / Grid / Mullion
4
Pivot windows
5
Hinged window / Hinged casement window / Casement window
6
Tilt-wing window / Tilt-sash window
de:
Kippflügel (m) / Kippflügel Fenster (nt)
fr:
Fenêtre basculante (f)
it:
Finestra ad anta ribalta (f)
es:
Ventana basculante (f)
pt: